C-112: Våningshus med tomt og svømmebasseng på landsbygda i Volterra
ØNSKET PRIS: 530.000,00 €
I det første landskapet i Volterra, kun 4 km fra tjenestene og butikkene i den etruskiske byen, selges en to-etasjes villa med 14000 kvm tomt og svømmebasseng.
Volterra er en pittoresk landsby i hjertet av Toscana. Den har en strategisk posisjon og på en times kjøretur er det mulig å nå alle de mest attraktive stedene i regionen som Siena, strendene, Pisa internasjonale flyplass; Firenze og Lucca er bare en og en halv times kjøring med bil, og på en halv time er det mulig å komme til den pittoreske og populære golfbanen i San Gimignano og Castelfalfi.
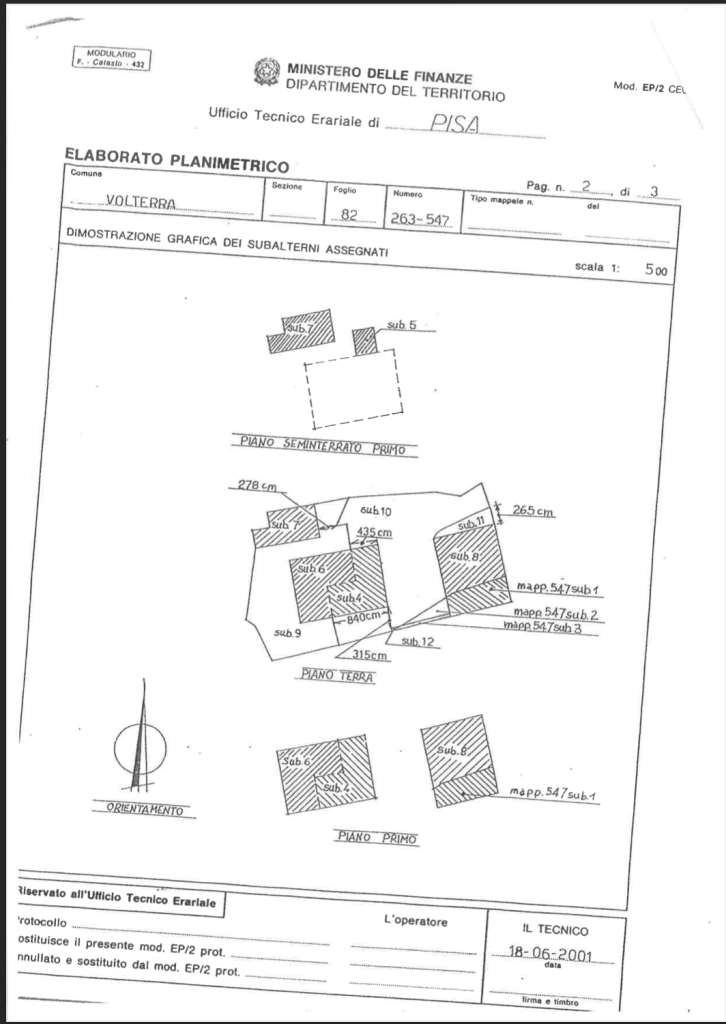
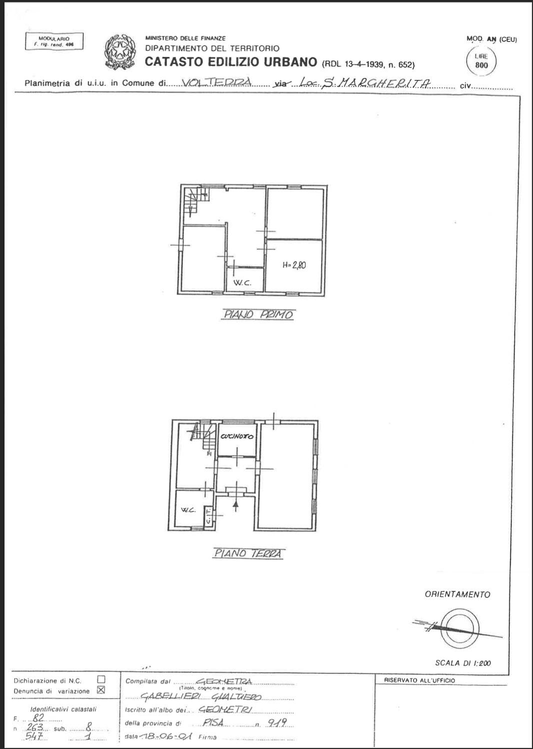
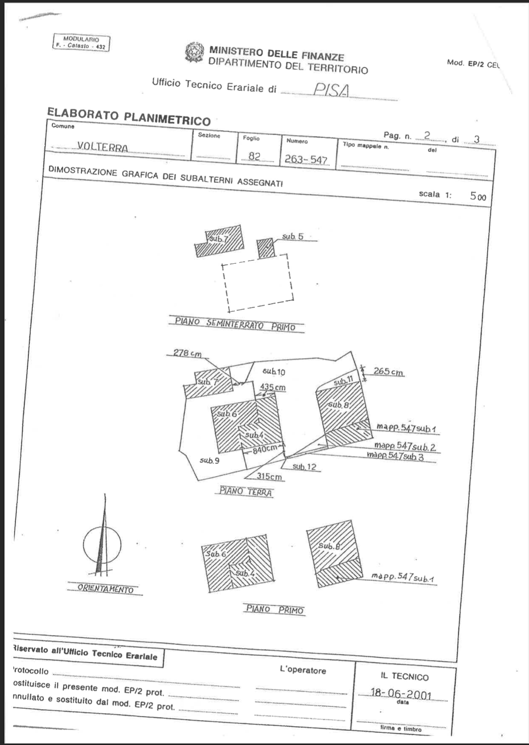
Huset er på 145 kvm, det er lett tilgjengelig gjennom et veldig kort stykke ikke asfaltert vei i gode forhold og det består av: inngang gjennom en 8 kvm loggia på bakkeplan, gang, kjøkkenkrok, stor stue med vedovn og bad. Alltid på bakkeplan, med egen inngang er det fyrrom. Innvendig trapp fører til første etasje som består av gang med peis, 3 soverom og bad. Badene ble renovert i 2005 og huset er i god stand, det må bare tilpasses. Alle systemer er tilkoblet og fungerer med vannledning og LPG-gasstank. Salget inkluderer en 27 kvm to-etasjes låve som skal totalrenoveres og brukes i dag som lager, 14000 kvm tomt med oliven- og frukttrær og et svømmebasseng på 8 x 5 meter.
I umiddelbar nærhet av eiendommen som er til salgs er naboens hus, uansett forstyrrer det ikke utsikten og intimiteten. Villaen har en fantastisk panoramautsikt over det omkringliggende landskapet.
Dette er et perfekt hus å bo i permanent eller å tilbringe ferien på grunn av dets nærhet til tjenestene og den rolige bakgrunnen.
Interessert?
Hvis du er interessert i å kjøpe en av boligene kan du bruke vårt kontaktskjema, som du finner her.
































